Hilltop Saddleback Family 23'6"
Order Saddleback Slide-Out in November and receive an unbelievable $5,000 discount!!!
Virtual Tour
It is coming soon, but in the meantime, have a look at the virtual tours of Saddleback for exploring the living space and Kosciusko for sleeping and bathroom arrangements
Video
Coming soon
Description
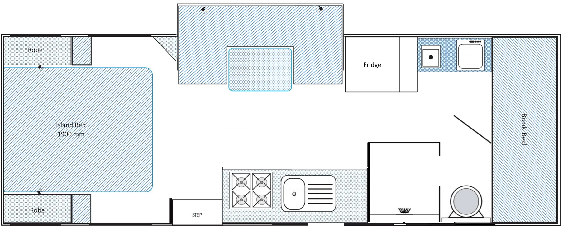
Hilltop Saddleback Family 23’6” – Spacious Comfort for the Whole Family
The Hilltop Saddleback Family 23’6” is designed for families who want luxury, practicality, and space in their caravan adventures. Featuring a slide-out section, this model offers extra room and comfort, making it perfect for both short getaways and extended trips.
Why Choose the Hilltop Saddleback Family 23’6”?
- Slide-Out Living Area: Expands the interior space for a more open and comfortable feel.
- Spacious Club Lounge: A cozy and inviting space to relax, dine, or entertain.
- Family-Friendly Sleeping Arrangements: Includes 2 or 3 rear bunks, providing dedicated sleeping space for kids or guests.
- Straight Kitchen Layout: Equipped with a fan-forced oven, cooktop, microwave, and large fridge for effortless meal preparation.
- Solar Power: Integrated solar panels for off-grid capability.
- Durable Build: Designed to handle Australia's or New Zealand’s diverse conditions.
The Hilltop Saddleback Family 23’6” is perfect for those who want comfort, reliability, and extra space for family adventures.
Tare Mass: 3,100 kg.
The most popular extras are below, and some may not apply to the caravan of your choice. Let us know if something else is required, and we will make it happen.
- Café Seating converted to L-shape or Side Club Lounge (if applicable)
- Island bed converted to 2 x Single beds (if applicable)
- Draw Bar Mounted Electric Braking Controller
- Dometic Roof Top Air Conditioner
- Extended A-Frame with Tool Box
- Aluminium Composite Walls
- Leather upholstery
- Sway Control
- Inverter
- Instant Hot Water Service
- Removable carpets
- External BBQ
- Dometic/Thetford Compressor fridge
- Bike Rack
- Slide-out kitchen
- Curtains and Bedding
- Black sink and tapware
- External Shower
- Extra Grey Water tank
- Electric step
- Extra Solar panels
- Lithium batteries
- Spare Toilet Cassette
- Aluminium protection to pipes
- Stone guard
- Sirocco Fans
- Fusion Entertainment System
- 16” mud tyres
- Electric awning
- Chassis & suspension options
- Washing Machine
- Drinking Water and Water Filter
- 3-Arm Rear Bumper Bar with Bike Receiver
- Side Winder Jockey Wheel
We offer free New Zealand-wide shipping for brand new Hilltop Caravans.
The caravans are shipped by delivery companies, so no handover is provided in this case. We're happy to assist you over the phone.
If you require caravan handover, please consider picking it up from our office, or we're happy to deliver the caravan to you with handover at your premises:
- South Island: $600
- North Island: $1200
Terms and conditions: Talk to us to check it
